Nieuw in verkoop:Faunasingel 36, 6043 WR Roermond - Foto
Nieuw in verkoop
+42

Faunasingel 36 6043 WR Roermond € 435.000,- k.k.

  • Horecapand
  • Bouwjaar 2008
  • 221 m² perceeloppervlakte
  • 312 m² vloeroppervlakte
  • Gemeubileerd
  • A+ Energielabel A+

Beschrijving

Faunasingel 36 en 36A – multifunctioneel horecapand of beleggingspand met exploitatiemogelijkheden en groeipotentie met Energielabel A+

Aan de Faunasingel in Roermond wordt dit multifunctionele horecapand (bouwjaar 2008) aangeboden, bestaande uit de samengevoegde ruimtes Faunasingel 36 en 36A. Het pand wordt als één geheel verkocht en biedt een aantrekkelijke combinatie van directe gebruiksmogelijkheden, flexibiliteit en rendements- en ontwikkelpotentie. Deze combinatie maakt het pand bijzonder interessant voor zowel beleggers als ondernemers die willen starten of uitbreiden.

Faunasingel 36 – horecaruimte met exploitatie
Faunasingel 36 is ingericht als cafetaria en beschikt over een functionele en complete opstelling. Aanwezig zijn onder andere een professionele keuken met afzuiginstallatie, koel- en opslagruimten en separate dames- en herentoiletten.

Het zitgedeelte aan de voorzijde, in combinatie met de grote raampartijen, zorgt voor een lichte en toegankelijke uitstraling. Daarnaast is er een zolder aanwezig die extra opslagmogelijkheden biedt.

De huidige exploitant van de cafetaria heeft aangegeven bereid te zijn de inventaris en goodwill ter overname aan te bieden tegen betaling. Hierdoor is deze ruimte beschikbaar voor een eventuele nieuwe invulling of voortzetting van een horecaconcept.

Faunasingel 36A – multifunctionele ruimte met directe mogelijkheden
Faunasingel 36A betreft een zelfstandige en direct beschikbare ruimte die flexibel inzetbaar is. De ruimte is netjes afgewerkt, beschikt over veel lichtinval en heeft een praktische indeling. Hierdoor is deze geschikt voor uiteenlopende doeleinden, zoals uitbreiding van horeca, opslag, kantoor of een aanvullende exploitatie. Daarnaast is er een zolder aanwezig die extra opslagmogelijkheden biedt.

Potentie en waardeontwikkeling
De combinatie van beide ruimtes maakt dit pand bijzonder interessant. Waar Faunasingel 36 direct geschikt is voor exploitatie, biedt Faunasingel 36A aanvullende ruimte en flexibiliteit. Faunasingel 36 en 36A zijn momenteel van elkaar gescheiden door een scheidingswand. Deze wand kan worden verwijderd, waardoor de ruimtes samengevoegd kunnen worden tot één geheel.

De huidige staat van het gehele pand is functioneel en direct bruikbaar, met tegelijkertijd duidelijke mogelijkheden voor modernisering en het realiseren van een eigentijds concept. Hiermee kunnen zowel de uitstraling als het rendement verder worden geoptimaliseerd.

Rendement en investeringskans
Het pand biedt een aantrekkelijk aanvangsrendement van meer dan 5% in de huidige situatie. Door optimalisatie van de beschikbare ruimte, bijvoorbeeld via aanvullende verhuur of eigen exploitatie, is verdere rendementsverhoging goed realiseerbaar.

Kort samengevat
• Twee adressen (Faunasingel 36 en 36A), verkocht als één geheel
• Horecaruimte met complete inrichting
• Extra multifunctionele ruimte (direct beschikbaar)
• Mogelijkheid tot overname en/of nieuwe exploitatie van Faunasingel 36
• Rendement van >5% met groeipotentie
• Geschikt voor ondernemers en beleggers

Indeling en oppervlakten
Het pand is praktisch ingedeeld in twee zelfstandige ruimtes, elk met een eigen ingang en voorzieningen.

Ruimte Faunasingel 36 (momenteel verhuurd, exploitatie ter overname)
• VVO totaal: ca. 107,61 m²
• BVO totaal: ca. 199,90 m²
• In gebruik als horecaruimte
• Zorgt voor directe en stabiele inkomsten

Ruimte Faunasingel 36A (beschikbaar)
• VVO totaal: ca. 50,41 m²
• BVO totaal: ca. 111,83 m²
• Vrij van huurder en direct beschikbaar
• Ideaal voor eigen exploitatie of verhuur

Voorzieningen
• Twee zelfstandige ruimtes met eigen entree
• Eigen meterkasten
• Toiletvoorzieningen
• Cv-installaties
• Alarminstallatie

Gebruik en mogelijkheden
Het pand is ingericht voor horecagebruik en beschikt over een functionele en efficiënte indeling.
De ruimtes bieden onder andere:
• Een open zitgedeelte met lichtinval en zicht naar buiten
• Verkoopruimte die direct aansluiting op de keuken
• Keukenvoorzieningen
• Koel- en vriesfaciliteiten
• Opslag- en bergruimten
• Sanitaire voorzieningen

Dankzij de horecabestemming (categorie 1 en 2) zijn diverse concepten mogelijk, zoals:
• Cafetaria
• Lunchroom
• Afhaalconcepten
• Restaurant of bistro

Ligging
Gelegen in de woonwijk Hoogvonderen in Roermond, op een goed bereikbare locatie met voldoende parkeergelegenheid in de directe omgeving.

Het pand ligt gunstig ten opzichte van diverse uitvalswegen, waaronder de A73, waardoor omliggende steden en regio’s eenvoudig bereikbaar zijn. Aan de overzijde van het pand bevindt zich een Action, wat zorgt voor een constante toestroom van bezoekers en extra zichtbaarheid. Daarnaast ligt het pand op korte afstand van het Retailpark Roermond, Gamma, Bouwmaat en andere grootschalige voorzieningen.

De combinatie van een woonomgeving, sterke publiekstrekkers in de directe nabijheid en een goede bereikbaarheid zorgt voor een continue stroom aan passanten en potentiële klanten, wat deze locatie uitermate geschikt maakt voor horecadoeleinden.

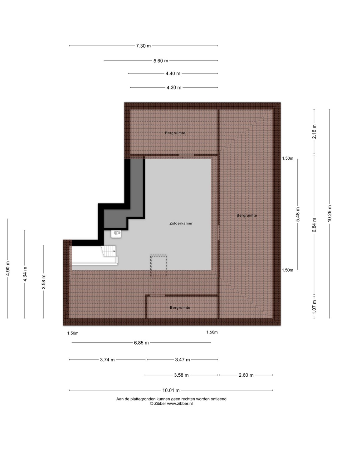
Eerste verdieping

Er is een zolder met vaste trap aanwezig die extra opslagmogelijkheden biedt.

Bijzonderheden

• Vrijstaand horecapand
• Twee zelfstandige ruimtes
• Totale gebruiksoppervlakte van ca. 158 m² VVO
• Deels verhuurd, deels beschikbaar
• Directe inkomsten aanwezig
• Mogelijkheid tot eigen exploitatie
• Flexibele invulling (belegging én gebruik)
• Interessante waardevermeerderingskansen

Disclaimer
Deze informatie is met zorg samengesteld. Aan de inhoud kunnen echter geen rechten worden ontleend.

Kaart

Kenmerken

Overdracht

Referentienummer
OP00016
Vraagprijs
€ 435.000,- k.k.
Inrichting
Ja
Inrichting
Gemeubileerd
Status
Nieuw in verkoop
Aanvaarding
In overleg
Aangeboden sinds
Dinsdag 31 maart 2026
Laatste wijziging
Woensdag 15 april 2026

Bouw

Type object
Horecapand, Café/bar, Eetcafé, Restaurant, Lunchroom/broodjeszaak, Snackbar, Ijssalon, Café/restaurant, Luxe restaurant, Chinees Indisch restaurant, Pannenkoekenhuis/crêperie
Soort bouw
Bestaande bouw
Bouwperiode
2008

Oppervlaktes en inhoud

Perceeloppervlakte
221 m²
VVO
312 m²
Verkoopoppervlakte
110,3 m²

Locatie

Ligging
In woonwijk
Nabij school
Nabij snelweg
Open ligging
Vrij uitzicht
Lokale voorzieningen
Restaurant op 500 meter tot 1000 meter
Winkel binnen 500 meter
Supermarkt binnen 500 meter
Bereikbaarheid
Bushalte binnen 500 meter
Treinstation op 2000 meter tot 3000 meter
Afrit van de snelweg binnen 500 meter

Energieverbruik

Energielabel
A+

Uitrusting

Heeft een terras
Ja

Kadastrale gegevens

Kadastrale aanduiding
Roermond H 2363
Perceeloppervlakte
221 m²
Omvang
Geheel perceel
Eigendomsituatie
Eigen grond