Instapklare gezinswoning met 4 slaapkamers, voor- en achtertuin én volop comfort.
✔ Energielabel B
✔ Carport & 2 bergingen
✔ Rolluiken
✔ Tuin met buiten barbecue
Direct te betrekken en ideaal vo...
Ruime instapklare gezinswoning met tuin op het zuiden, carport, 2x bergingen en rolluiken, gelegen op een rustige locatie
Op zoek naar een woning die direct goed voelt én ruimte biedt voor de toekomst? Deze verrassend ruime tussenwoning combineert een lichte en comfortabele leefomgeving met een praktische indeling en volop mogelijkheden om verder te groeien. Dankzij de volwaardige zolderverdieping, de zonnige tuin en de carport op eigen terrein is dit een ideale woning voor wie nét wat meer ruimte en flexibiliteit zoekt.
De woning is gelegen in een rustige en kindvriendelijke woonomgeving, met voldoende parkeergelegenheid in de directe omgeving. Alle dagelijkse voorzieningen zoals winkels, scholen en openbaar vervoer bevinden zich op korte afstand. Dankzij de gunstige ligging nabij de A73 en de N280 zijn omliggende steden zoals Venlo, Maastricht en Düsseldorf snel en eenvoudig bereikbaar. Ook de uitvalswegen richting het centrum van Roermond en de autosnelwegen zijn goed ontsloten. Hier woon je comfortabel, met alles binnen handbereik.
Indeling
Begane grond Via de verzorgde voortuin bereik je de entree van de woning. In de hal bevinden zich het toilet en de trapopgang. De woonkamer is licht en ruim opgezet en biedt een fijne leefruimte met plaats voor een comfortabele zit- en eethoek. Aan de achterzijde ligt de halfopen keuken, die in directe verbinding staat met de woonkamer. De keuken is praktisch ingericht en voorzien van diverse apparatuur en voldoende kastruimte. Vanuit hier loop je zo de tuin in.
Eerste verdieping
De eerste verdieping beschikt over drie slaapkamers, allen met prettig daglicht. De badkamer is ruim en voorzien van een douche, wastafel en toilet en volledig betegeld.
Tweede verdieping
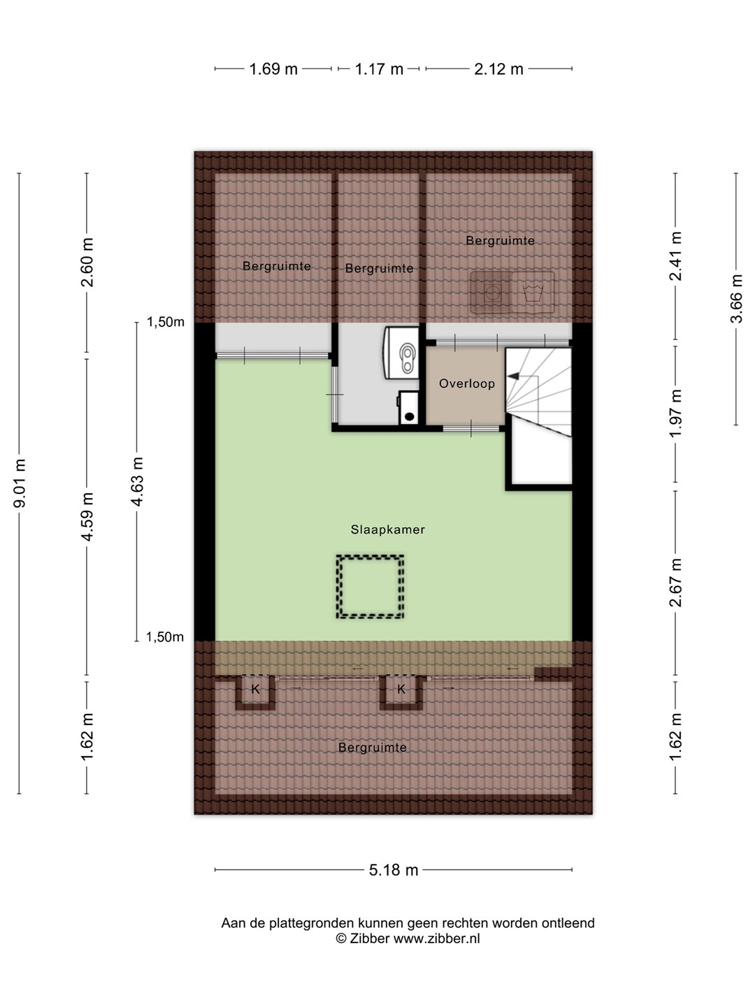
Zolder De zolder is bereikbaar via een vaste trap en vormt een volwaardige extra verdieping. Hier bevindt zich een ruime kamer die uitstekend geschikt is als vierde slaapkamer, werkruimte of hobbykamer. Daarnaast is er praktische bergruimte aanwezig en zijn hier de cv-installatie en mechanische ventilatie geplaatst. Tevens is er een afgesloten en netjes afgewerkte ruimte aanwezig met opstelplaats en aansluitingen voor de wasmachine en droger, waardoor deze voorzieningen netjes uit het zicht zijn geplaatst.
Tuin
Buitenruimte De achtertuin is verzorgd aangelegd en biedt volop privacy en zon. Achter in de tuin bevindt zich een carport, ideaal voor parkeren op eigen terrein. De tuin is zowel via de achterom als vanuit de woning bereikbaar, wat zorgt voor extra gebruiksgemak. Daarnaast beschikt de woning over meerdere bergingen én een houten tuinhuis, waardoor er verrassend veel opslagruimte aanwezig is. De voortuin geeft de woning een nette uitstraling en zorgt voor een prettige afstand tot de straat.
Bijzonderheden
Bouwjaar 1980 Woonoppervlakte ca. 116 m² Gelegen in rustige, kindvriendelijke buurt Lichte woonkamer met halfopen keuken Drie slaapkamers Zolder met vaste trap (mogelijkheid 4e slaapkamer) Badkamer met douche, wastafel en toilet Extra bergkast op de verdieping Zonnige tuin met veel privacy Carport op eigen terrein Berging en houten tuinhuis Rolluiken aanwezig Instapklare gezinswoning Rustige en kindvriendelijke ligging Carport + bergingen + tuinhuis
Kaart
Kenmerken
Overdracht
Referentienummer
OP00013
Vraagprijs
€ 350.000,- k.k.
Aanvaarding
In overleg
Aangeboden sinds
Dinsdag 17 maart 2026
Laatste wijziging
Donderdag 16 april 2026
Bouw
Type object
Woonhuis, eengezinswoning, tussenwoning
Soort bouw
Bestaande bouw
Bouwperiode
1980
Isolatievormen
Dakisolatie Gedeeltelijk dubbel glas
Oppervlaktes en inhoud
Perceeloppervlakte
149 m²
Woonoppervlakte
119 m²
Inhoud
411 m³
Oppervlakte externe bergruimte
13 m²
Indeling
Aantal bouwlagen
3
Aantal kamers
5 (waarvan 4 slaapkamers)
Aantal badkamers
1 (en 1 apart toilet)
Locatie
Ligging
Aan rustige weg Dichtbij openbaar vervoer In woonwijk Nabij school Nabij snelweg
Tuin
Type
Achtertuin
Oriëntering
Zuiden
Staat
Prachtig aangelegd
Tuin 2 - Type
Voortuin
Tuin 2 - Oriëntering
Oosten
Tuin 2 - Heeft een achterom
Ja
Tuin 2 - Staat
Prachtig aangelegd
Energieverbruik
Energielabel
B
CV ketel
CV ketel
HR-107 ketel
Combiketel
Ja
Uitrusting
Aantal parkeerplaatsen
1
Aantal overdekte parkeerplaatsen
1
Warm water
CV-ketel
Verwarmingssysteem
Centrale verwarming
Badkamervoorzieningen
Douche Toilet Wastafel Wastafelmeubel
Tuin aanwezig
Ja
Heeft een garage
Ja
Heeft rolluiken
Ja
Heeft een dakraam
Ja
Kadastrale gegevens
Kadastrale aanduiding
Roermond H 2173
Perceeloppervlakte
149 m²
Omvang
Geheel perceel
Eigendomsituatie
Eigen grond
Media
Foto's
Video
Plattegronden
Log in op je account
Neem contact met mij op
Bedankt. Je aanvraag is verwerkt. We zullen snel contact met je opnemen.
Plan een bezichtiging
Bedankt. Je aanvraag is verwerkt. We zullen snel contact met je opnemen.